Kolidar Environmental Modern Design Steel Structure Prefabricated House for Camping, Garden, Container Home, Office, Space Capsule
Size: 20FT/40FT Customized
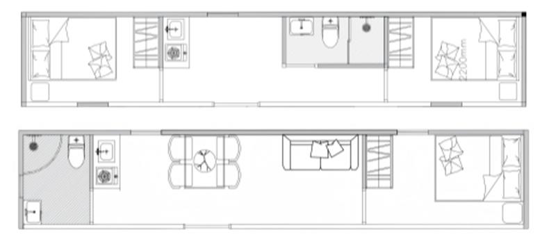
Building Area: 36m2,72m2
Layout: One bedroom, one living room, one kitchen, one bathroom
Material: Steel, Sandwich Panel, Other
Wall Thickness: Standard, Thicken
Door: Thermal Break Aluminum Door,Aluminum Alloy Door,KFC Door
Window: Thermal Break Aluminum Casement Window,Thermal Break Aluminum Sliding Window,Thermal Break Aluminum Bottom-Hung Window,Aluminum Alloy Sliding Window
Price: $6,850
Color: Wood Grain ,White ,Grey ,Customized Colors
Secure payments

Every payment you make on Kolidahouse.com is secured with strict SSL encryption and PCI DSS data protection protocols
Money-back protection
Claim a refund if your order doesn't ship, is missing, or arrives with product issues